Construction

The church is a living organism. A building is only a tool that God has given so that the congregation can gather, learn, rejoice, and serve. However, in our case the history of the building’s construction is directly connected with the founding of the congregation. The construction history is not perfect in dates—because many people worked at the same time. Someone came with a roller and paint, someone with advice, someone with money. No one kept strict records of the work invested: everyone did what they could, and how they could. But it was precisely this unity and willingness to serve that made the impossible possible—we have our own building.

Chronology: step by step

8 July 1997

At the meeting it was decided: it is time to build our own home for believers. We purchased a basement space on Priežu Street and 8 sotkas of land. Pastor Josifs Bondarenko donated 1000 dollars for this purpose. For many it was more than construction—it was the first step toward a dream that everyone had cherished together for years.

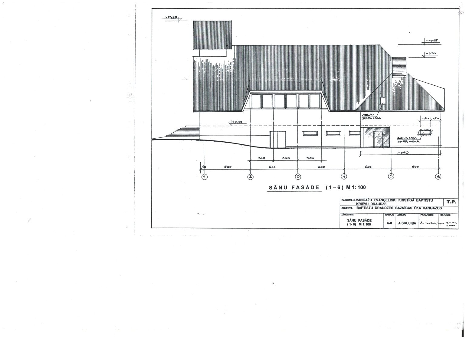
Project architect - Ausma Skujiņa (18 July 1931 — 13 August 2015) — Latvian architect, one of the founders of the association «Māja», a supporter of the ideas of «green architecture», based on respect for nature and human harmony with the surrounding environment. She designed and reconstructed residential buildings and churches in Liepāja, Mārupe and other cities. Based on her designs, not only our church was built, but also the church in Aizpute; the church in Vecpiebalga was restored, and the Skalbji family cemetery project «Saulrieti» (Vecpiebalga) was created. In 1966 Ausma Skujiņa became a member of the Latvian Association of Architects; in 1998 she was awarded the Order of the Three Stars, 4th Class, and in 1999 she received the State Culture Capital Foundation lifetime scholarship.

18 December 1998

The foundation was purchased, the building sketch was ready, and the plot’s topography was studied. A church bank account was opened. Fundraising turned into joyful anticipation: someone brought bricks, someone—food for the builders, someone—money. Every working day reminds us: we are building not walls, but a community.

22 August 1999

 It was decided: each member of the congregation will work on the construction for 30 days a year. Someone from morning till evening mixed cement, someone painted the walls, someone simply held a tool—together we all became one team.

Year 2000

During this time, a fence was installed, electricity and sewage were brought in. A building permit was obtained. And although progress was slow, each day brought us closer to a home where the whole congregation can gather.

24 January 2002

The roof has been put on. For the first time, the warmth of the parish house can be felt: rain and wind no longer disturb meetings, and the walls begin to “breathe” with life.

21 April 2002

The first meeting in the small hall. Children’s laughter, prayers, adults’ conversations – the building begins to fill with life. Later this hall will become a meeting place for young people, where new ideas and projects are born.

28 March 2004

The second floor is ready: a library and two classrooms for Sunday school. The land plot has been officially registered. Projects have been started for the gasification of the boiler house and the installation of an electric cable. Construction continues, but it is already felt – the house is living its own life.

26 February 2006

Windows and doors were installed, and the walls were finished on the outside. In the builders’ hands you can see work and love: every blow, every meter – a contribution to the common work.

Ceremonial opening

11 years of work, and finally the building is completely finished. Guests arrive for the celebration from other cities, and many builders come to remember their contribution. Tears of joy, laughter, memories – the celebration unites everyone. It became a testimony: with God’s help and shared work, the impossible becomes possible.

Today

The work continues: the dining hall and kitchen are being rebuilt, the heating modernized, and stormwater drainage installed. The building and the land need care, just like the whole life of the community. And that is good – because care and work make the building alive, and the congregation – a true family, where everyone makes their contribution.